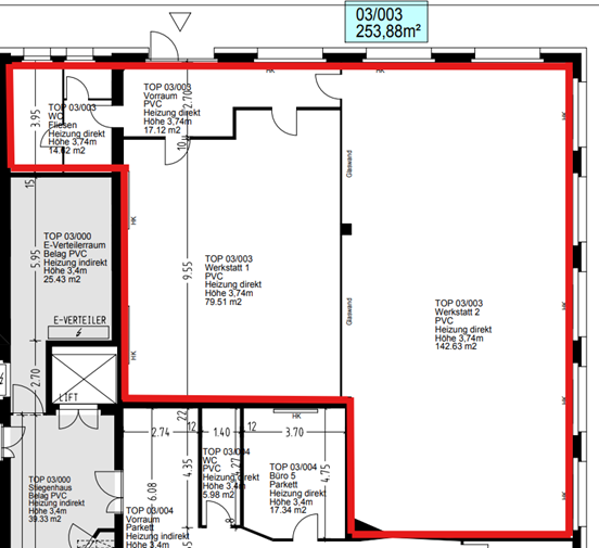
Factbox zu TOP 03/003

Fläche: ca. 254 m²
Gebäude: Technologiehaus
Immobilienart: gewerbliche Immobilie
Geschoss: Erdgeschoss
Verfügbar ab: 01.02.2026
Bauart: gebraucht
Heizwärmebedarf (HWB): 82 kWh/m2a
Heizwärmebedarf Klasse: C
Vertragsart: Miete/Pacht
 

Ausstattung: Teppichboden / Außenbeschattung / Küchenblock mit Garderobe / tribünenartiges Sitzmöbel / Vorhangsystem / getrennte WC-Anlagen / EDV-Verkablung / indirekte Beleuchtung / elektrisches Zutrittssystem.

Einmalkosten: PROVISIONSFREI FÜR MIETER / KEINE Vertragserrichtungskosten / 3 BMM Kaution in Form einer Bankgarantie / Vergebührung beim Finanzamt


Bildergalerie