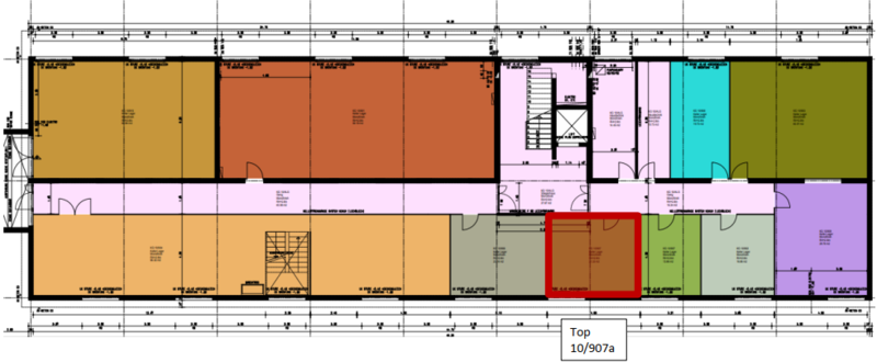
Factbox zu TOP 10/907a

Fläche: 21 m²
Gebäude: Haus A
Immobilienart: gewerbliche Immobilie
Geschoss: Kellergeschoss
Verfügbar ab: sofort
Bauart: Gebraucht
Heizwärmebedarf (HWB): 38 kWh/m2a
Heizwärmebedarf Klasse: B
Vertragsart: Miete
 

Ausstattung: Zufahrtsmöglichkeit über Rampe (B 5,0 m) / Gebäudeeingang (B 1,34 m x H 2,1 m) mit Chip-Zugang / Zugangstüre (B: 0,78 x H: 2,00 m) / Raumhöhe 2,4 m / versperrbar / unbeheizt / Vermietung nur an gewerbliche Mieter als Lager/Archiv (keine Werkstatt o.ä.)

Einmalkosten: PROVISIONSFREI FÜR MIETER / KEINE Vertragserrichtungskosten / 3 BMM Kaution in Form einer Bankgarantie / Vergebührung beim Finanzamt


Bildergalerie