Factbox zu TOP 14/001

Fläche: ca. 191 m²
Gebäude: Haus J
Immobilienart: gewerbliche Immobilie
Geschoss: EG + 1. OG
Verfügbar ab: sofort
Bauart: gebraucht
Heizwärmebedarf (HWB): 113,92 kWh/m2a
Heizwärmebedarf Klasse: E
Vertragsart: Miete/Pacht
 

Ausstattung: Lager: Zufahrtsmöglichkeit mit LKW / Rolltor mit überdachter Ladezone / bei Bedarf beheizbar / 7,5 m Raumhöhe / Monofinishoberfläche (Nutzlast 1.000 kg/m²) / Strom- und Starkstromanschlüsse / WC-Anlage.
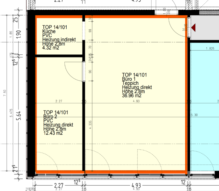
Büro im 1.OG über interne Stiege: 2,8 m Raumhöhe / Kügelgarn / Kühlung / Teeküche / EDV-Verkabelung über Bodendosen  / elektr. Zutrittssystem.
Kostenlose Kundenparkplätze sind im Areal vorhanden. Stellplätze für Mitarbeiter können im angrenzenden Parkhaus um € 56,- netto p.m. zzgl. € 13,50 p.m. Betriebskostenpauschale gemietet werden
Einmalkosten: PROVISIONSFREI FÜR MIETER / KEINE Vertragserrichtungskosten / 3 BMM Kaution in Form einer Bankgarantie / Vergebührung beim Finanzamt


Bildergalerie