Factbox zu Top 15/002

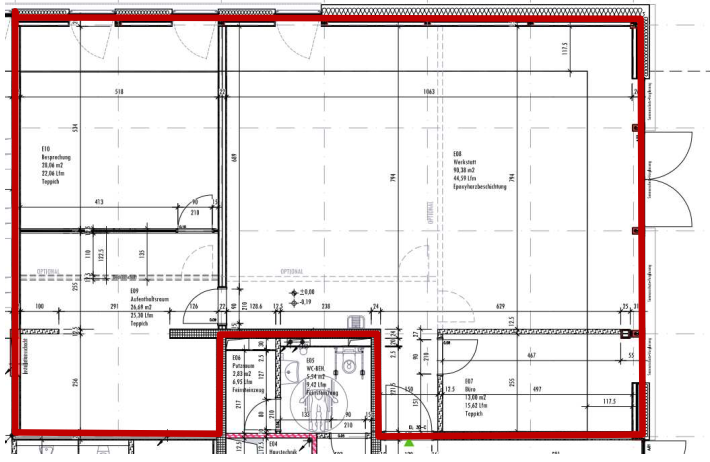
Fläche: 161 m²
Gebäude: Haus K
Geschossart: gewerbliche Immobilie
Geschoss: EG
Verfügbar ab: nach Vereinbarung
Bauart: gebraucht
Heizwärmebedarf (HWB): 37 kWh/m2a
Heizwärmebedarf Klasse: B
Lift vorhanden: Ja
Vertragsart: Miete

Ausstattung: Sonnenschutz mit Motorantrieb und Tageslichtsteuerung / CAT.7-Verkablung über Bodendosen / Epoxidharzboden und Nadelfilzteppich / voll ausgestattete Küchenzeile / WC-Anlage im EG zur Mitnutzung / elektrisches Zutrittssystem / Kostenlose Kundenparkplätze / Stellplätze für Mitarbeiter können im angrenzenden Parkhaus um € 56,- netto p.m. zzgl. € 13,50 p.m. Betriebskostenpauschale gemietet werden.

Einmalkosten: PROVISIONSFREI FÜR MIETER / Keine Vertragserrichtungskosten / 3 BMM Kaution in Form einer Bankgarantie / Vergebührung beim Finanzamt


Bildergalerie